usz zürich
architektur
bauherrschaft: hochbauamt kanton zürich
planung: 4plus architektinnen gmbh
bauleitung: meili bauconsulting ag
realisierung: 2011
baukosten: CHF 8‘500’000
universitätsspital zürich
farb- und materialkonzept nord1, umbau mri und neo
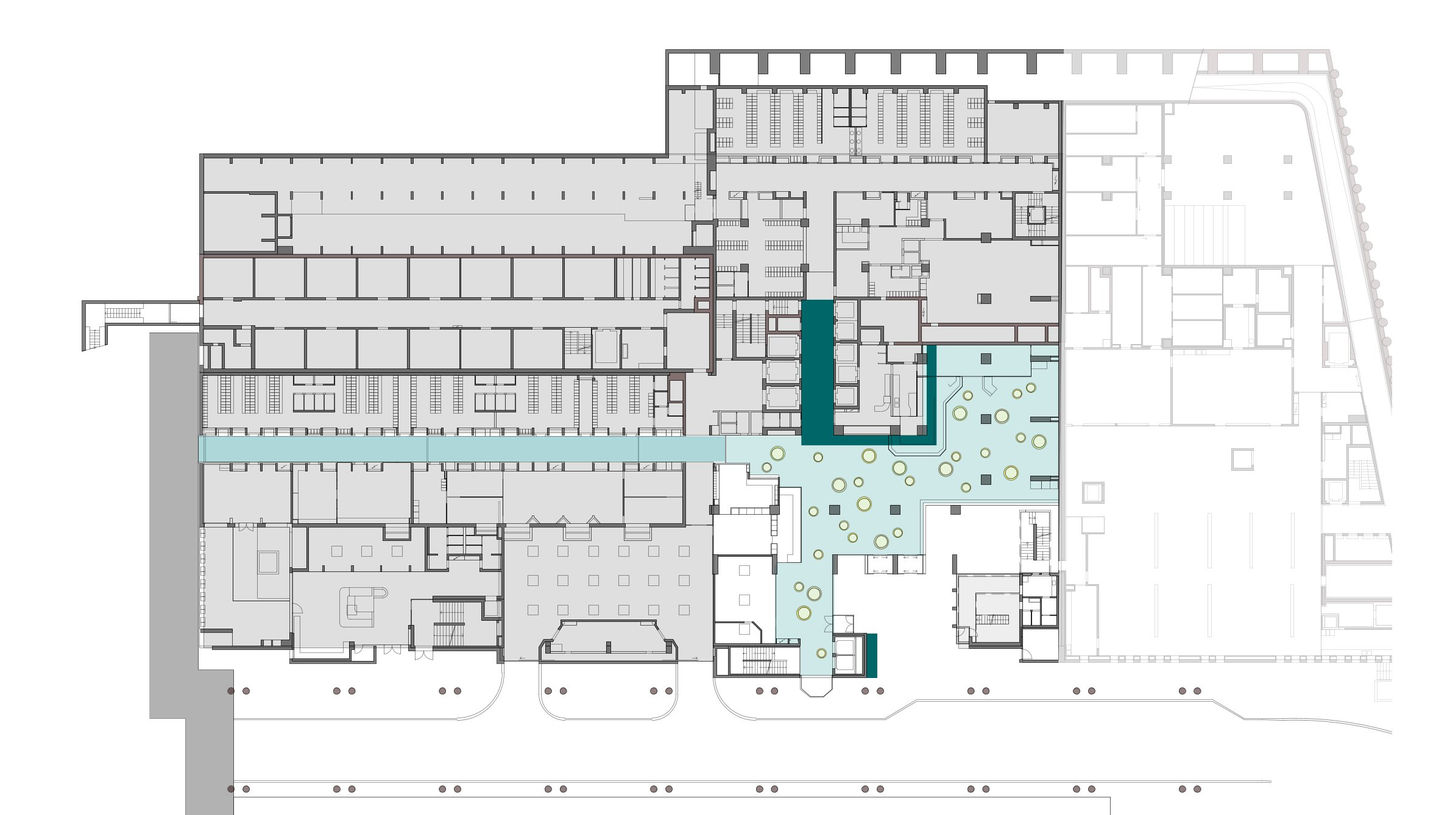
Ausgangslage für die Umgestaltung der neuen Räumlichkeiten im Universitätsspital Zürich waren der Einbau dreier neuer MRI Geräte. Die Grundstruktur des Korridors und der angrenzenden Büroräumlichkeiten konnte belassen werden, der rückwärtige Teil erfuhr eine räumliche Veränderung.
Aufgrund der Umbauten der beiden Abteilungen MRI und Neonatologie drängte sich die Frage nach einem gesamtheitlichen Material- und Farbkonzept im Gebäudekomplex NORD1 des Universitätsspital Zürich auf. Die Grundidee basiert auf den Erschliessungsräumen, sowohl in horzontaler wie in vertikaler Richtung.
Das Gebäude besteht im unteren Teil aus verschiedenen Längstrakten, aus denen sich heraus der 11-geschossige Bettenturm erhebt. Die bauliche Grundstruktur ist klar gegliedert und soll mit der entsprechenden Farbigkeit betont werden. Die langen Korridore werden mit einem je seitlich angeordneten Lichtband und farbigen Schranktüren aufgelockert, aber auch geordnet.
Das Konzept soll auch für weitere Umbauten im NORD1 angewendet werden können. Die Farbdreiklänge sind vielfältig und auf die jeweils vorhandenen Produktefarben anwendbar. Es soll ein langfristiges Konzept mit der nötigen Flexibilität sein, dass sich angesichts der laufenden Veränderungen im Universitätsspital behaupten mag.














